




Land in Elwyn Road for Sale - £150,000
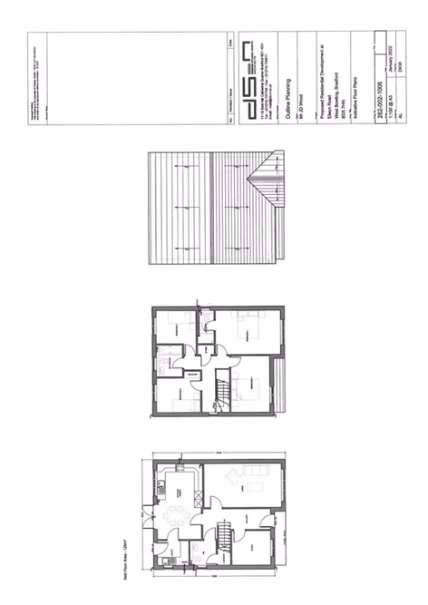
A superb area of land with outline planning for 2 x 4 bedroom detached homes. Totally over 8000 sq ft, this plot will be in high demand. Situated at the top of this popular cul de sac, the plot is ideally located to the local school and local amenities Please see the plans online and you...
Land in Elwyn Road for Sale - £150,000
Description
A superb area of land with outline planning for 2 x 4 bedroom detached homes. Totally over 8000 sq ft, this plot will be in high demand. Situated at the top of this popular cul de sac, the plot is ideally located to the local school and local amenities Please see the plans online and you...
Contact Agent
Smart Picks — Professionals Relevant to This Land
Based on this property's key features, here are the specialists you may want to consult as part of your due diligence: land agents, rural solicitors and planning consultants.

Land Agents
Essential for navigating the land market, finding buyers, and securing the best price.

Rural Solicitors
Significant investment (£150K+) requires legal expertise for conveyancing, title checks, and transaction security.

Planning Consultants
Planning-sensitive site needs expert guidance for applications and development strategy.
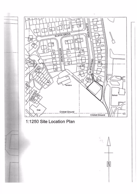
Location
Elwyn Road